Loja
Consolação REF.: GB35474
Consolação
VALOR DE VENDA R$ 22.590.450,00
LOCAÇÃO R$ 199.327,50
IPTU R$ 17.277,00
  • 1.380m²

    Área Total

  • 1.329m²

    Área Útil

  • 10

    sala(s)

  • 1

    vaga(s)

Entre em contato:
Gostaria de visitar o imóvel?

SOBREo Imóvel

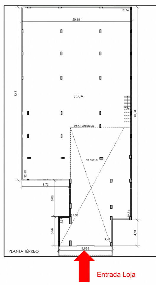
Imóvel Comercial Imponente na Região Central de São Paulo

Ampla loja comercial com 1.329m², dividida em dois andares, oferecendo uma fachada moderna de 9,9 metros, ideal para empresas que buscam localização estratégica e espaço versátil. Este imóvel é perfeito para quem procura visibilidade e funcionalidade em uma das regiões mais movimentadas de São Paulo.

Características do Imóvel:

Área total: 1.328,85m².
Dividido em 10 salas, proporcionando espaços bem distribuídos.
1 vaga de garagem.
Fachada de 9,9 metros, ideal para destacar sua marca.
Estrutura robusta com dois andares, permitindo diferentes tipos de layout.
Diferenciais:

Localização estratégica na Consolação, próxima ao centro financeiro e comercial da cidade.
Fácil acesso às principais vias e transporte público.
Potencial para diversas atividades comerciais, como lojas, escritórios, clínicas ou academias.
Venda: R$ 22.590.450,00
Locação: R$ 199.327,50

Agende uma visita e conheça esta oportunidade única de adquirir ou locar um imóvel comercial de alto padrão em uma das regiões mais valorizadas de São Paulo!

VÍDEOdo Imóvel

Sobre o BAIRRO

Este bairro está recebendo atualização em sua descrição. Assim que o processo estiver completo, voltará a ficar disponível. Agradecemos a atenção.

Ler Mais
Imagem de Bairros
Disponibilidade, valores, informações exibidos acima estão sujeitos à alteração sem prévio aviso. Para mais detalhes, entre em contato conosco.
Vamos conversar? Preencha com informações básicas os campos abaixo e fale agora mesmo com um atendente via WhatsApp!